フォレストヒルズ磯子 上大岡の3LDK賃貸マンション!駐車場キャンペーン中!高さ制限有。ペット相談可。日当たり良好♪|フロックスエステート 株式会社竹之内企画

PC
横浜市住宅供給公社実績 No.1

横浜市内のファミリー物件取扱件数No.1

現在 0 マイ条件の活用法 お気に入りの活用法

TOPページ > 横浜市磯子区の賃貸情報一覧 > フォレストヒルズ磯子 上大岡の3LDK賃貸マンション!

フォレストヒルズ磯子 上大岡の3LDK賃貸マンション

お問合わせNO:842815405564r
家賃 15万円 共益費 / 管理費 5,000円 / - 敷金 / 礼金 0ヶ月 / 2ヶ月
種別 / 構造 マンション / RC造(鉄筋コンクリート造) 主要採光面 保証金 / 敷引 - / -
専有面積 65.03m2 所在階 / 階数 6階 / 8階 築年月 2009年1月 
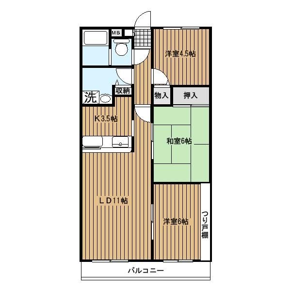
間取り 3LDK ( LDK13畳/和室6畳/洋室5.9畳/洋室5.4畳 )
交通
京急本線 「上大岡駅」 徒歩12分
横浜市営地下鉄ブルーライン 「上大岡駅」 徒歩12分
JR京浜東北・根岸線 「磯子駅」 徒歩25分
所在地 神奈川県横浜市磯子区岡村8丁目21-19   周辺MAP
小学校区 横浜市立藤の木小学校
(神奈川県横浜市)
中学校区 藤の木中学校
(神奈川県横浜市)

  • 【建物外観】 
  • 【間取】 
  • 【キッチン】 
  • 【バス】 
  • 【玄関】 
  • 【居間・リビング】 
  • 【バルコニー】 
  • 【眺望】 
  • 【トイレ】 
  • 【洗面所】 
  • 【収納】 
  • 【寝室】 
  • 【その他部屋・スペース】 
  • 【その他共有部分】 
  • 【キッチン】 
  • 【その他】 
  • 【居室・リビング】 
【建物外観】 
写真枚数は 17枚 です。
 

【フォレストヒルズ磯子についてスタッフからのイチオシポイント!】

駐車場キャンペーン中!高さ制限有。ペット相談可。日当たり良好♪
フォレストヒルズ磯子は神奈川県横浜市磯子区岡村8丁目21-19【京急本線 上大岡駅徒歩12分】にある3LDK賃貸マンションです。
2009年1月築の8階建てのマンションで、お部屋は8階建ての6階部分です。
物件の広さは65.03m2で人気の3LDKです。

※お部屋のもっと詳しい内容や入居時期、諸条件のご相談など、ホームページには掲載が間に合わず載せきれていない情報もございます。
気になることが御座いましたらお気軽にメールにてお問い合わせください。

 物件詳細情報

損保 要 20,000円/2年  更新料 あり 新賃料 1ヶ月 鍵交換代 -
駐車場 あり5,500円 近隣駐車場   契約期間
借家区分
2年 -
現況 空家 入居可能日 相談 取引態様 媒介
保証人代行会社 月額合計の初回45%・2年毎に25,000円*その他プラン有*法人契約の場合加入義務無し(敷金2ヶ月要) 仲介手数料 1ヶ月 バイク置き場 500円
他初期費用

 設備詳細情報

キッチン
  • システムキッチン
  • 対面式キッチン
  • 3口以上コンロ
バス・トイレ
  • 給湯
  • バストイレ別
  • シャワー
  • 追焚機能浴室
  • 浴室乾燥機
  • 洗面所独立
  • 洗面台
  • シャワー付洗面台
  • 温水洗浄便座
  • 洗面化粧台
  • 室内洗濯機置き場
  • 分譲賃貸
住空間
  • バルコニー
  • 内装リフォーム済
  • リノベーション
  • 南向き
  • フローリング
  • エアコン
設備・サービス
  • 収納
  • クロゼット
  • シューズボックス
  • 全居室収納
  • TVインターホン
  • エレベーター
  • 宅配ボックス
  • 敷地内ごみ置き場
  • 駐輪場
  • バイク置場
  • CS
  • BS
  • CATVインターネット
  • 地上デジタル放送
特 徴
  • 陽当り良好
  • 閑静な住宅地
  • 緑豊かな住宅地
条件・その他  ガス:都市 / 水道:公営 / 下水:下水 / 事務所:可 / 2人入居:可 / 楽器相談:可 / ペット:可能 / 子供:可 / 保証人代行:必加入
コメント 駐車場キャンペーン中!高さ制限有。ペット相談可。日当たり良好♪
備 考 -
情報更新日:2026年04月10日 次回更新予定日:2026年04月24日
※各種情報と現状に差異がある場合は、現状優先となります。

近隣スポット情報

  • 【買う】コンビニエンスストア
    セブンーイレブン 横浜笹堀店(434m)
  • 【買う】コンビニエンスストア
    ローソン 横浜岡村七丁目店(588m)
  • 【買う】ドラッグストア
    クリエイト 磯子岡村店(150m)
  • 【買う】スーパー
    京急ストア 磯子岡村店(450m)
  • 【学ぶ】中学校
    横浜市立藤の木中学校(614m)
  • 【買う】ドラッグストア
    クリエイトSD磯子岡村店(119m)
  • 【買う】ドラッグストア
    クリエイトS・D磯子岡村店(119m)
  • 【買う】ドラッグストア
    クリエイト 磯子岡村店(150m)
  • 【買う】コンビニエンスストア
    セブンイレブン横浜笹堀店(446m)
  • 【買う】コンビニエンスストア
    セブンイレブン横浜笹堀店(446m)
  • 【買う】ドラッグストア
    ハックドラッグ磯子広町店(795m)
  • 【買う】コンビニエンスストア
    セブンイレブン横浜岡村4丁目店(1096m)
  • 【交通】駅
    上大岡駅(1414m)
  • 【学ぶ】小学校
    横浜市立汐見台小学校(1335m)
  • 【買う】コンビニエンスストア
    ローソン上大岡西二丁目店(1422m)
  • 【買う】コンビニエンスストア
    ローソン上大岡西二丁目店(1422m)
  • 【買う】コンビニエンスストア
    ローソン 上大岡西二丁目店(1440m)
  • 【買う】コンビニエンスストア
    ローソン 上大岡西二丁目店(1440m)
  • 【買う】ショッピングセンター
    イトーヨーカドー横浜別所店(1576m)
  • 【買う】コンビニエンスストア
    ローソン磯子間坂バス停前店(1959m)

 こちらの物件の空室状況

部屋番号 賃料 管理費 間取り 専有面積 敷金 礼金 お気に入り 物件詳細

 こちらの物件へのお問合せはこちらから

ホームページを見てと伝えてください
株式会社竹之内企画
〒221-0834
神奈川県横浜市神奈川区台町6-5
TEL : 045-595-9515
お問合わせNO:842815405564r

空室情報の確認や詳細を知りたい方
お問合せはお気軽にお問合せください!


この物件に似た物件をチェック!

  • 賃貸マンション 14万円

    磯子駅 徒歩3分

    2LDK(57.28u)

    日当たり良好♪オートロック付で安心♪

  • 賃貸マンション 14.3万円

    磯子駅 徒歩3分

    3DK(60.65u)

    日当たり良好♪


閲覧した物件の履歴

閲覧した物件の一覧を見る


気になったら今すぐ!カンタンお問合せ



お問合せ内容必須
【備考欄】
希望条件・来店希望日・その他質問がございましたらご記入ください。
お客様情報
お名前必須
連絡先必須


※ご記入いただいたメールアドレス宛てに、お問合せ内容の確認メールをお送りいたします。
※Yahoo!メールなどのフリーメールをご利用の場合、迷惑メールフォルダに入る場合があります。
 迷惑メールのフォルダ・設定等をご確認下さい。
メールアドレス
電話番号
FAX(任意)



個人情報の取扱いについてを必ずご確認ください。
内容に同意の上、確認画面へお進みください。


 


▲ページのTOPへ戻る



「あなた」と「お部屋」に、
ステキな出会いがありますように。
フロックスエステートは、ゆったりとコーヒーを飲みながら、
カフェ気分でお部屋探しができる、新しいお店のカタチです。
不動産屋から営業されずに、時間を忘れて自由にお部屋探しがしたい、
そんな方にぴったりの空間になっています。どうぞ、お気軽にご来店ください。